Lot 2 Belle Creek Lane Belle River, Prince Edward Island C0A 1B0

Waterfront On River Acreage

$79,000

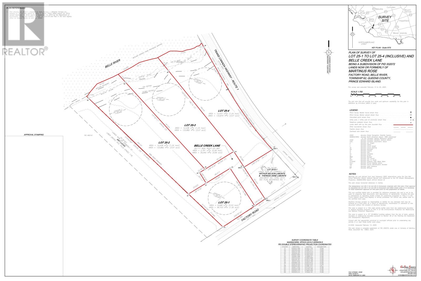
An approved 3.07 acre waterfront building lot situated on Belle Creek Lane just off the Factory Road in Belle River with 211 feet of water frontage on the Belle River. Lot is surveyed and cleared. The lot is approved for septic (Perc category 2) and well. The Factory Road is a year round paved road just off the Trans Canada Highway. At the end of the Factory Road (a short 2 minute drive) there is a white sandy beach. Covenants will promote rural living and self sufficiency (gardens, clotheslines, and chickens are allowed). Located in the Belfast school district, the lot is only 5 minutes from the Wood Islands Ferry, 25 minutes to Montague, and 40 minutes to Charlottetown. HST is applicable. (id:56351)

Property Details

MLS® Number 202506445
Property Type Vacant Land
Community Name Belle River
Easement None
Features Partially Cleared
View Type River View
Water Front Type Waterfront On River

Building

Utility Water None

Parking

None

Land

Acreage Yes
Sewer No Sewage System
Size Irregular 3.07
Size Total 3.07 Ac|3 - 10 Acres
Size Total Text 3.07 Ac|3 - 10 Acres

https://www.realtor.ca/real-estate/28103310/lot-2-belle-creek-lane-belle-river-belle-river

Contact Us

Contact us for more information

Generating Captcha