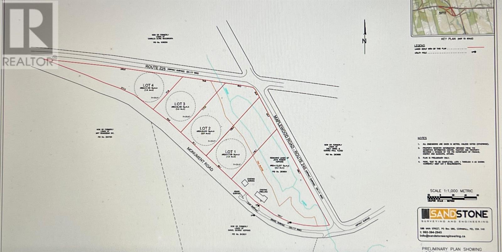
Lot 1 Monument Road Stanchel, Prince Edward Island C0A 1Y0

Acreage Not Landscaped

$58,500

NEW PRICE! $58,500.00, no HST!!! Great deal! This gorgeous centrally located lot is close to power hookup and fully serviced Monument Rd. Oversized 1.9 acre stunning wooded lot! Perfect and affordable lot to build a house or a retreat. Own your slice of unspoiled PEI paradise. Come see this property, it's really beautiful. Lot 1 is oversized 1.9-acres. Nestled away in Stanchel, Prince Edward Island, the area has rolling hiss, and a healthy distance away from potato farming and spraying. This property offers privacy, fresh air, and a peaceful natural setting full of wildlife. At the bottom end of Lot 1 is the magical upper reaches of the Dunk, a pristine trout stream, known for bald eagles, owls, ravens, songbirds, foxes, bees and wildflowers. This Lot is located, not just in a rural area, but within a special celebrated community, known as "The Dixon Road." It's local culture, including: organic farms, artists, musicians a library, art gallery, a seed bank, potlucks, a 18 hole Frisbee gold-course, and a prize-winning craft brewery. Trails, downhill and cross-country skiing are five minutes away, and both North and South Shore beaches are twenty minutes. Year-round road access and nearby power make this lot ideal to make it into your dream piece of PEI. Want more land?Seller is willing to sell more lots at a discounted price. 20 min from Airport. 17 min from the Confederation Bridge. Located between Ch?town and S?side for great shopping, pickleball, soccer, schools, hospitals, no place is too far. Ideal location for the convenience, or commuting to work. (PM me if you are interested). (id:56351)

Property Details

MLS® Number 202522573
Property Type Vacant Land
Community Name Stanchel
Easement None
Features Treed, Sloping

Building

Utility Water None

Parking

None

Land

Access Type Year-round Access
Acreage Yes
Landscape Features Not Landscaped
Sewer No Sewage System
Size Irregular 1.9
Size Total 1.9 Ac|1 - 3 Acres
Size Total Text 1.9 Ac|1 - 3 Acres

https://www.realtor.ca/real-estate/28822968/lot-1-monument-road-stanchel-stanchel

Contact Us

Contact us for more information

Generating Captcha