4 Bedroom
1 Bathroom
Fireplace
Baseboard Heaters, Wall Mounted Heat Pump, Stove
$459,000
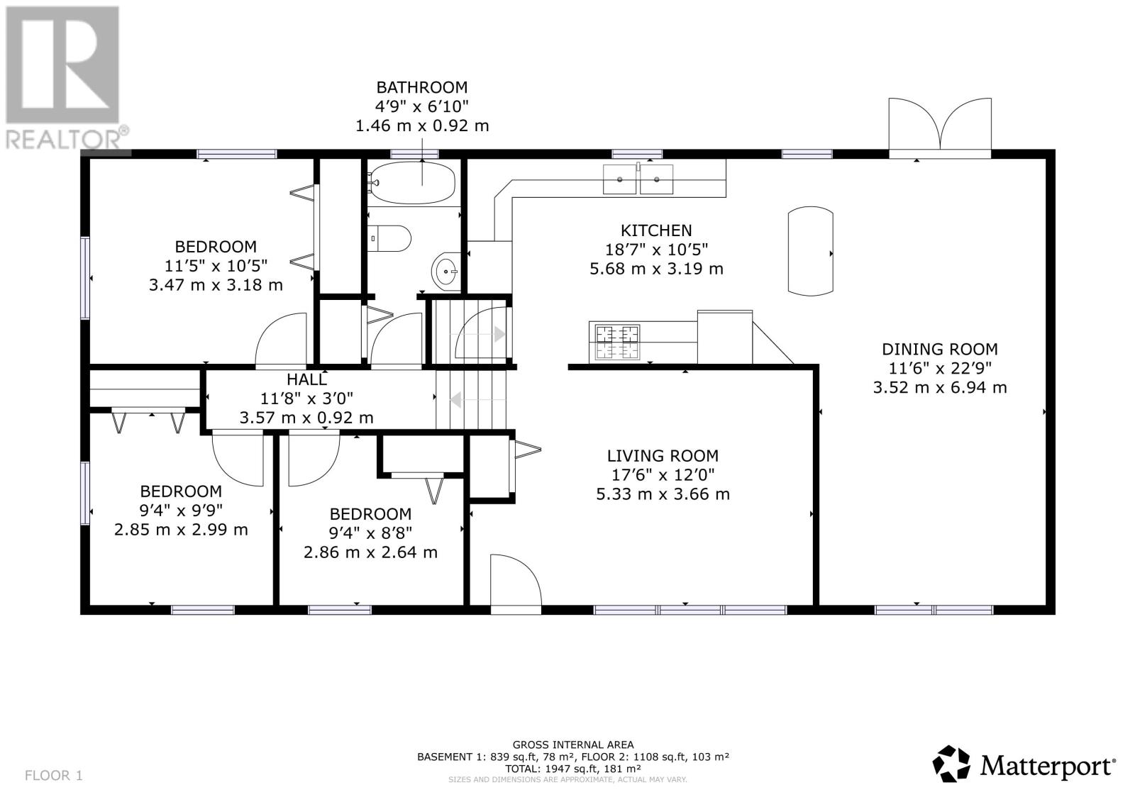
Well maintained home on a large mature lot on the edge of Stratford. Main level: living room, kitchen (appliances included), dining / family room. Upper level: full bath, three bedrooms. First lower level: rec room with wood stove, bedroom, laundry room (unfinished with washer and dryer). Second lower level: unfinished. Extensive decking front back. (id:56351)
Property Details
|
MLS® Number
|
202600373 |
|
Property Type
|
Single Family |
|
Community Name
|
Stratford |
|
Community Features
|
School Bus |
|
Features
|
Paved Driveway |
|
Structure
|
Deck |
Building
|
Bathroom Total
|
1 |
|
Bedrooms Above Ground
|
3 |
|
Bedrooms Below Ground
|
1 |
|
Bedrooms Total
|
4 |
|
Appliances
|
Range - Electric, Dishwasher, Dryer - Electric, Washer, Microwave Range Hood Combo, Refrigerator |
|
Basement Development
|
Partially Finished |
|
Basement Type
|
Full (partially Finished) |
|
Constructed Date
|
1971 |
|
Construction Style Attachment
|
Detached |
|
Construction Style Split Level
|
Sidesplit |
|
Exterior Finish
|
Wood Shingles |
|
Fireplace Present
|
Yes |
|
Fireplace Type
|
Woodstove |
|
Flooring Type
|
Carpeted, Ceramic Tile, Hardwood |
|
Foundation Type
|
Poured Concrete |
|
Heating Fuel
|
Electric, Wood |
|
Heating Type
|
Baseboard Heaters, Wall Mounted Heat Pump, Stove |
|
Total Finished Area
|
1530 Sqft |
|
Type
|
House |
|
Utility Water
|
Drilled Well |
Land
|
Access Type
|
Year-round Access |
|
Acreage
|
No |
|
Sewer
|
Municipal Sewage System |
|
Size Irregular
|
0.5 |
|
Size Total
|
0.5 Ac|1/2 - 1 Acre |
|
Size Total Text
|
0.5 Ac|1/2 - 1 Acre |
Rooms
| Level |
Type |
Length |
Width |
Dimensions |
|
Second Level |
Bath (# Pieces 1-6) |
|
|
4.9 X 6.11 |
|
Second Level |
Bedroom |
|
|
(9.4X6.8) + (5X2.3) |
|
Second Level |
Bedroom |
|
|
9.4 X 8.11 |
|
Second Level |
Bedroom |
|
|
11.7 X 10.5 |
|
Lower Level |
Bedroom |
|
|
(8.7X6) + (4.7X2.1) |
|
Lower Level |
Recreational, Games Room |
|
|
8.7 X 21.2 |
|
Main Level |
Living Room |
|
|
15.2 x 12.2 |
|
Main Level |
Kitchen |
|
|
15.9 x 10.6 |
|
Main Level |
Family Room |
|
|
11.6 X 23.1 |
https://www.realtor.ca/real-estate/29228248/49-mount-herbert-road-stratford-stratford