3 Bedroom
2 Bathroom
Air Exchanger
Baseboard Heaters
$235,000
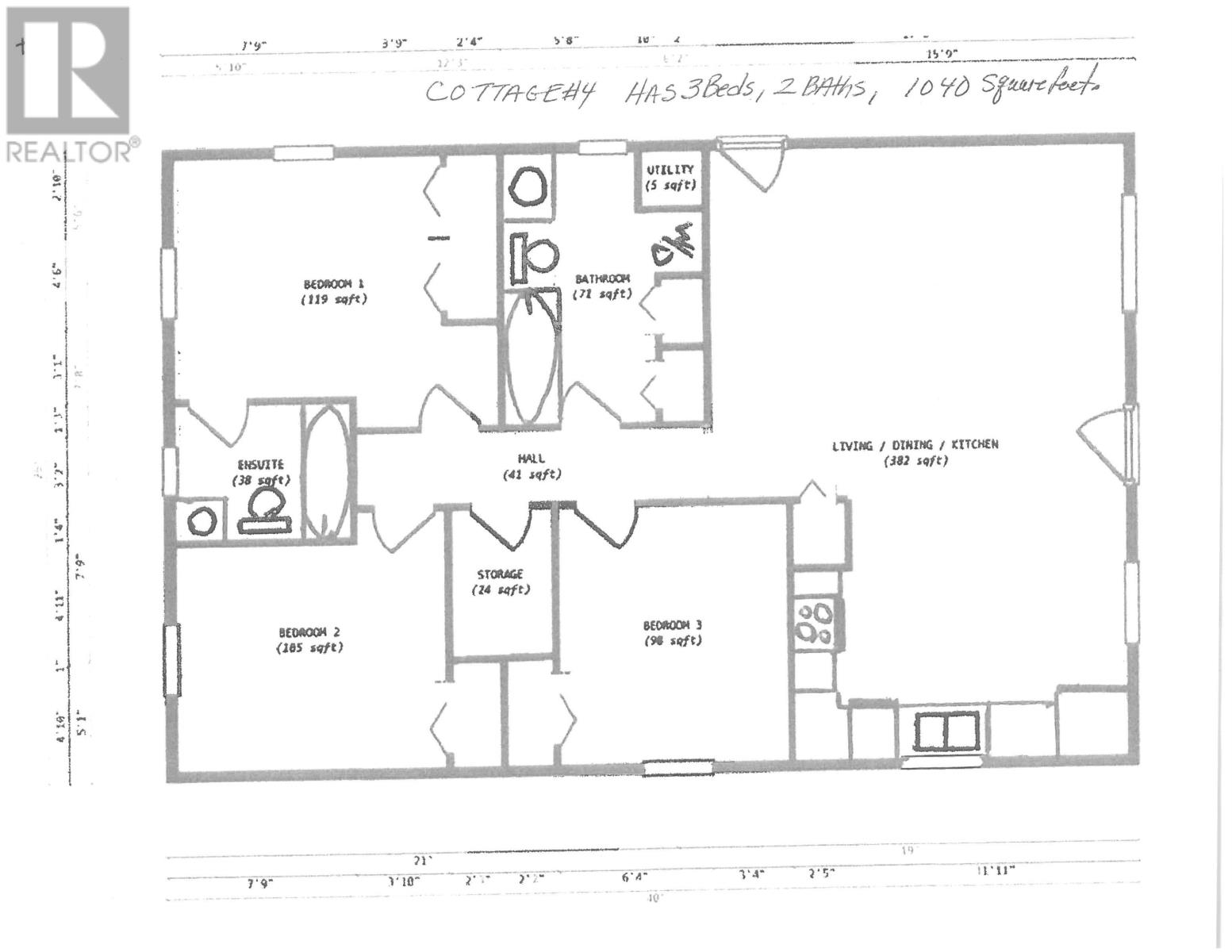
Gorgeous 3 bedroom cottage that is built with quality to be moved to your lot for you to enjoy. Beautiful design with large open concept kitchen, dining and living room with beautiful white cabinets, durable countertops, beautiful water resistant vinyl click flooring throughout, large windows, 2 full bathrooms with surround tub & shower, vanity and toilet. Plus hookups for stackable washer & dryer. This impressive cottage is insulated with R24 in the walls and R 50 in the ceiling. 2x6 construction. Comes equipped with 40 gallon hot water tank, air exchanger, and finished on the inside with walls being painted, trim being painted white, light fixtures and all doors and windows. This cottage can be placed by the buyer on a concrete foundation or posts. Note: doesn?t include appliances, skirting or deck. (id:56351)
Property Details
|
MLS® Number
|
202509884 |
|
Property Type
|
Single Family |
|
Community Name
|
Mayfield |
Building
|
Bathroom Total
|
2 |
|
Bedrooms Above Ground
|
3 |
|
Bedrooms Total
|
3 |
|
Appliances
|
None |
|
Basement Type
|
None |
|
Constructed Date
|
2025 |
|
Construction Style Attachment
|
Detached |
|
Cooling Type
|
Air Exchanger |
|
Exterior Finish
|
Vinyl |
|
Flooring Type
|
Laminate |
|
Foundation Type
|
Concrete Block, Wood |
|
Heating Fuel
|
Electric |
|
Heating Type
|
Baseboard Heaters |
|
Total Finished Area
|
1040 Sqft |
|
Type
|
House |
|
Utility Water
|
None |
Parking
Land
|
Access Type
|
Year-round Access |
|
Acreage
|
No |
|
Sewer
|
No Sewage System |
Rooms
| Level |
Type |
Length |
Width |
Dimensions |
|
Main Level |
Eat In Kitchen |
|
|
12x13 |
|
Main Level |
Living Room |
|
|
17.7x12 |
|
Main Level |
Primary Bedroom |
|
|
13.3x10.7 |
|
Main Level |
Bath (# Pieces 1-6) |
|
|
8.8x5.7 |
|
Main Level |
Bedroom |
|
|
11.3x11.6 |
|
Main Level |
Bedroom |
|
|
10x9.6 |
|
Main Level |
Bath (# Pieces 1-6) |
|
|
11x8 |
|
Main Level |
Storage |
|
|
4x6 |
https://www.realtor.ca/real-estate/28260950/4-house-to-be-moved-mayfield-mayfield